The Willow offers effortless living with a private master suite, home theatre, and open-plan kitchen flowing to the alfresco. A versatile single-storey home with smart design that to suit a variety of families, small, downsizers, and everyone in between.
Willow

Willow
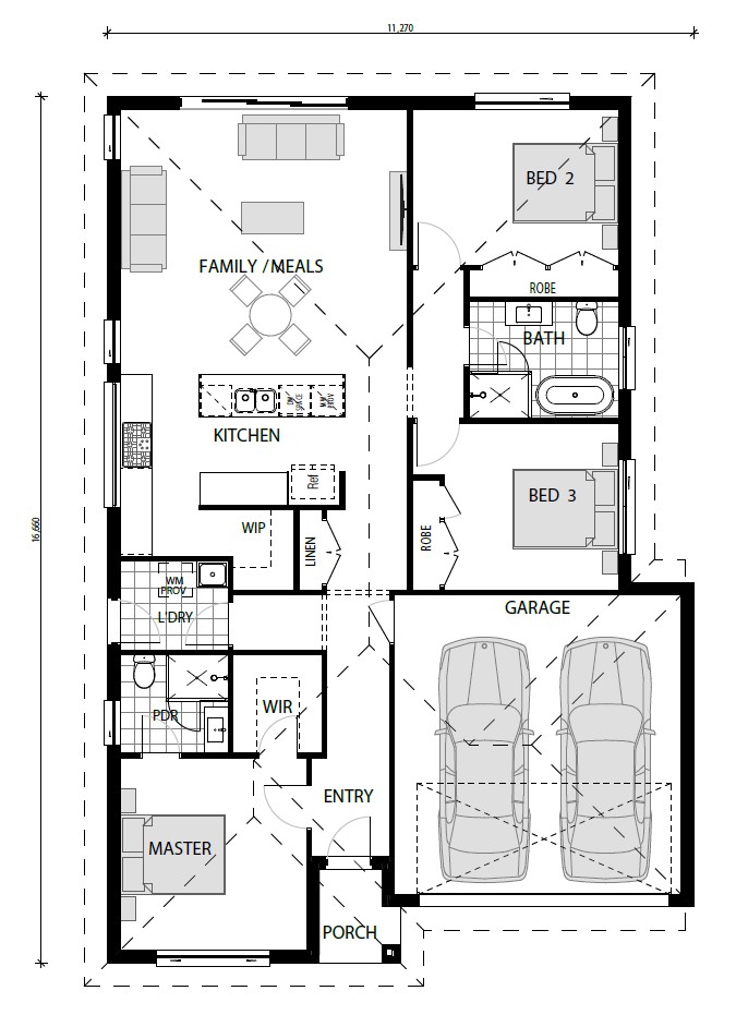
Floorplan
Area Calculations
Suits 12.5m Frontage
Bed: 3
Bath: 2
Garage: 2
Square: 18.4sq
Floorplan Details
Width: 11.27m
Length: 16.66
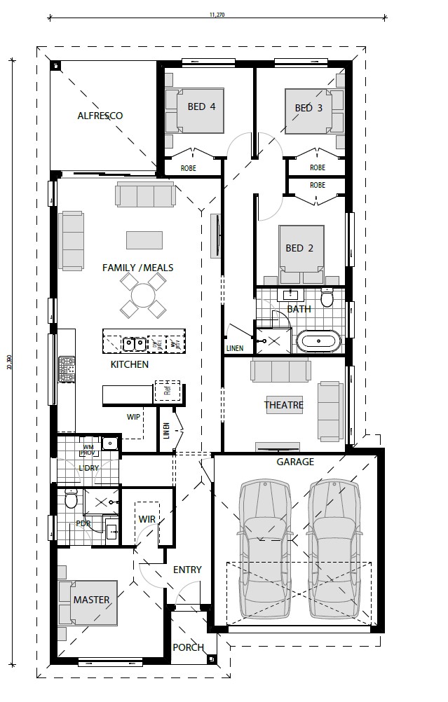
Area Calculations
Suits 12.5m Frontage
Bed: 4
Bath: 2
Garage: 2
Square: 23sq
Floorplan Details
Width: 11.27m
Length: 20.39
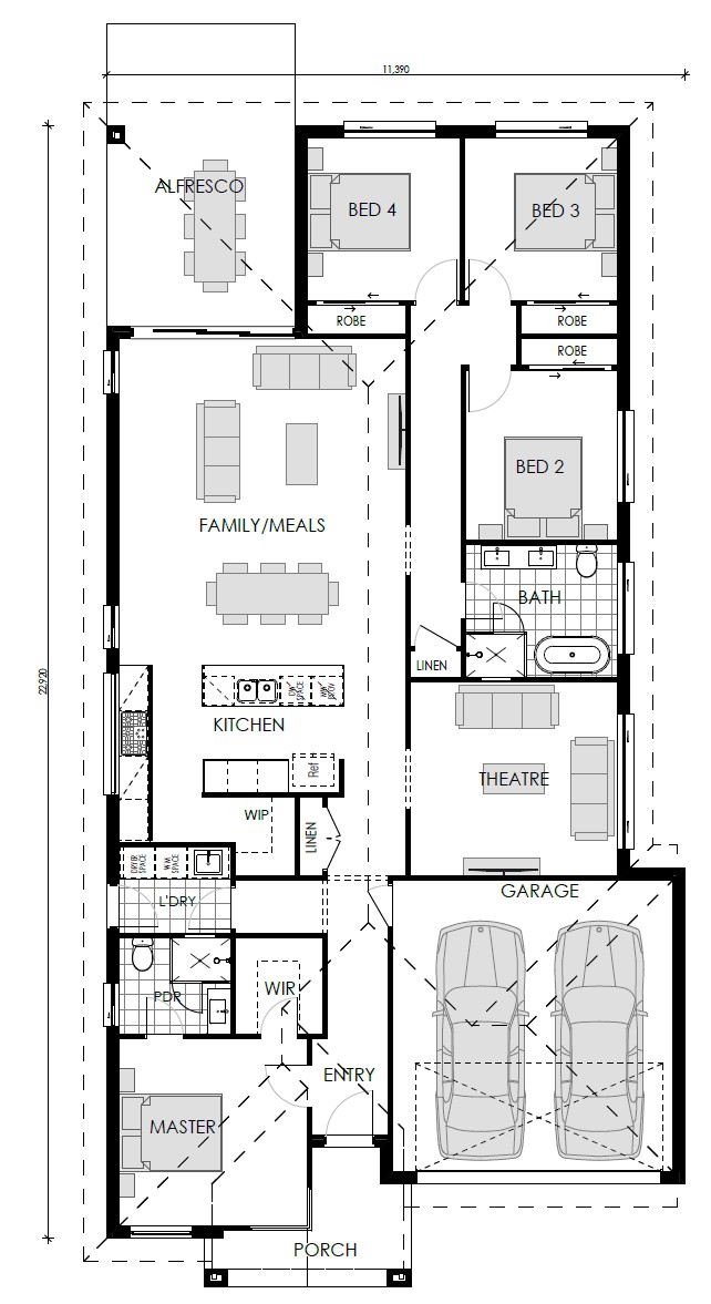
Area Calculations
Suits 12.5m Frontage
Bed: 4
Bath: 2
Garage: 2
Square: 25.8sq
Floorplan Details
Width: 11.39m
Length: 22.92
Willow
Facades
The Creative Collection
The Creative Collection offers a thoughtfully designed range of single and double-storey homes that keep things simple without compromising on comfort or quality. Ideal for smaller lots, each floorplan features open-plan living, smart zoning, and practical inclusions that suit modern lifestyles.
You can personalise your home with optional upgrade bundles—making it easy to enhance selected finishes while keeping the process streamlined and stress-free.
It’s simplicity done well—where value, comfort, and liveability come together from day one.

Latest news
Our Latest Offers & News
Come visit us at
A Display Home in Sydney
Now you can view your future home in person with Crystele display homes across South and Western Sydney.Visit your closest location and explore our contemporary designs complete with our premium finishes and high-quality inclusions.

Error: Contact form not found.





























