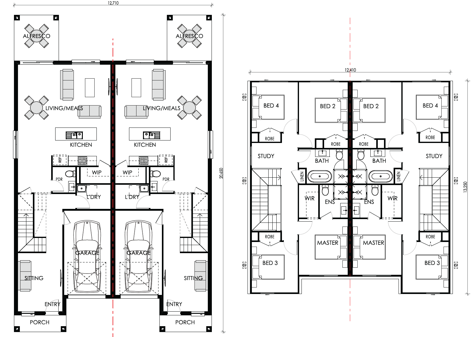
Designed to suit 15m wide lots, each home features a welcoming sitting area at the front — ideal as a quiet retreat, play space, home office or additional living zone. The open-plan kitchen, complete with a walk-in pantry, flows seamlessly into the main living and dining areas, while upstairs includes a handy study nook alongside well-appointed bedrooms.
Rose

Rose
Floorplan
Area Calculations
Suits 15m Frontage
Bed: 4
Bath: 2.5
Garage: 2
Square: 39.8sq
Floorplan Details
Width: 12.7m
Length: 17.7m
Area Calculations
Suits 15m Frontage
Bed: 4
Bath: 2.5
Garage: 2
Square: 41.7sq
Floorplan Details
Width: 12.7m
Length: 20.7m
Area Calculations
Suits 15m Frontage
Bed: 4
Bath: 2.5
Garage: 2
Square: 43.8sq
Floorplan Details
Width: 12.7m
Length: 20.7m
Rose
Facades
The Creative Collection
The Creative Collection offers a thoughtfully designed range of single and double-storey homes that keep things simple without compromising on comfort or quality. Ideal for smaller lots, each floorplan features open-plan living, smart zoning, and practical inclusions that suit modern lifestyles.
You can personalise your home with optional upgrade bundles—making it easy to enhance selected finishes while keeping the process streamlined and stress-free.
It’s simplicity done well—where value, comfort, and liveability come together from day one.

Latest news
Our Latest Offers & News
Come visit us at
A Display Home in Sydney
Now you can view your future home in person with Crystele display homes across South and Western Sydney.Visit your closest location and explore our contemporary designs complete with our premium finishes and high-quality inclusions.

Error: Contact form not found.






