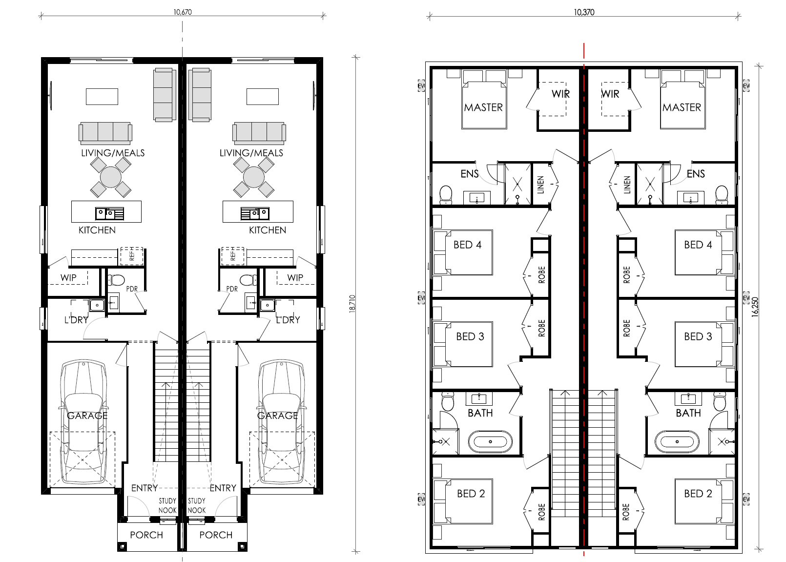
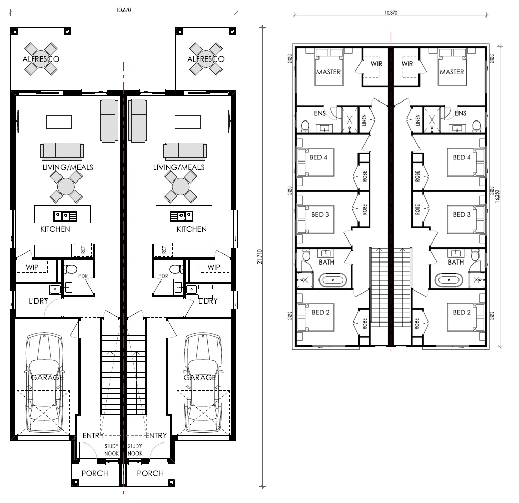
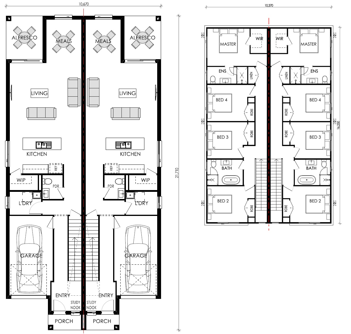
The Peridot is a contemporary duplex design in the Creative Collection and suited to 12.5m lots. Each home features four bedrooms, two bathrooms, a powder room and a single garage. A study nook at the front provides the perfect work-from-home space, while open-plan living connects seamlessly to a spacious kitchen with walk-in pantry. Alfresco options are included in the MKII and MKIII designs for easy indoor-outdoor living.
Peridot

Peridot
Floorplan
Area Calculations
Suits 12.5m Frontage
Bed: 4
Bath: 2.5
Garage: 2
Square: 38.3sq
Floorplan Details
Width: 10.7m
Length: 18.7m
Area Calculations
Suits 12.5m Frontage
Bed: 4
Bath: 2.5
Garage: 2
Square: 40.3sq
Floorplan Details
Width: 10.7m
Length: 21.7m
Area Calculations
Suits 12.5m Frontage
Bed: 4
Bath: 2.5
Garage: 2
Square: 41.7sq
Floorplan Details
Width: 10.7m
Length: 21.7m
Peridot
Facades
The Creative Collection
The Creative Collection offers a thoughtfully designed range of single and double-storey homes that keep things simple without compromising on comfort or quality. Ideal for smaller lots, each floorplan features open-plan living, smart zoning, and practical inclusions that suit modern lifestyles.
You can personalise your home with optional upgrade bundles—making it easy to enhance selected finishes while keeping the process streamlined and stress-free.
It’s simplicity done well—where value, comfort, and liveability come together from day one.

Latest news
Our Latest Offers & News
Come visit us at
A Display Home in Sydney
Now you can view your future home in person with Crystele display homes across South and Western Sydney.Visit your closest location and explore our contemporary designs complete with our premium finishes and high-quality inclusions.

Error: Contact form not found.






