Kelly St Austral
Enquire Now

Sixth Ave Austral, NSW 2179
$1,209,600
Mayfair MK1
Kelly St Austral
PACKAGE INCLUSIONS:
- Bundles 3, 4, driveway, A/C
- FIXED SITE COSTS
- BASIX
- Plain concrete driveway up to 30m2 – excludes footpath
- Actron single phase ducted air-conditioning unit
Mayfair MK1
Kelly St Austral
PACKAGE INCLUSIONS:
- Bundles 3, 4, driveway, A/C
- FIXED SITE COSTS
- BASIX
- Plain concrete driveway up to 30m2 – excludes footpath
- Actron single phase ducted air-conditioning unit
- 2590mm high ceilings to ground floor only
- Full height tiling to Bathroom and Ensuite only
- Creative Collection Range – 20mm Stone to Kitchen
- Designer Sink Mixer
- Finger pull cabinetry to overhead cupboards
- 2400mm high overhead kitchen wall cabinetry
- Soft close drawers and doors
- Plumbed cold water point to fridge space
- 900mm – SS – Gas Cooktop
- 900mm – SS – Built-In Electric Oven Model
- 900mm – SS – Slide Out Rangehood – Recirculating
- Dishwasher
- Designer Square Double Bowl Lay-on Sink
- Creative Collection range of glazed porcelain tiles to wet area floors
- Creative Collection range of glazed porcelain tiles to ground main floors OR 8mm Laminate to ground main floors
- 1500mm Freestanding Bath
- Tapware in Matte Black to Bathroom, Ensuite and Powder Room (House Design Specific)
- Accessories in Matte Black
- Wall Hung Vanities (House Design Specific)
- Semi-frameless shower screens
- 4
- 3
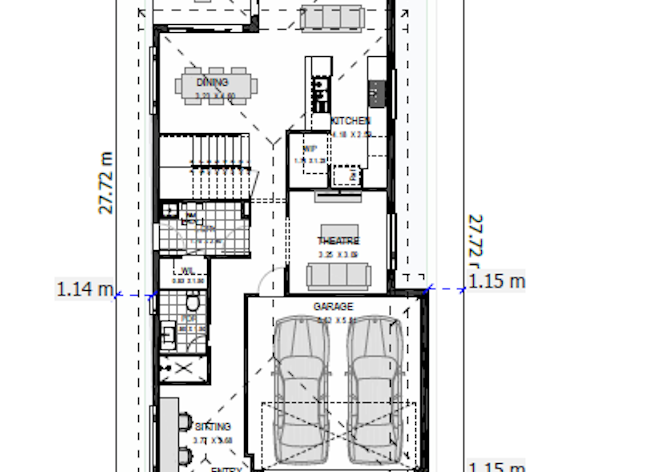
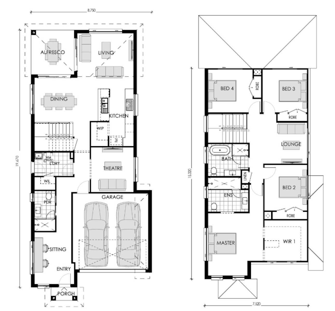
Area Calculations
Bed: 4
Bath: 3
Garage: 2
Property features
Lot size: 304.0
Land size: 11.0 x 27.0
Land price: $680,000
Latest news
Our Latest Offers & News
Come visit us at
A Display Home in Sydney
Now you can view your future home in person with Crystele display homes across South and Western Sydney.Visit your closest location and explore our contemporary designs complete with our premium finishes and high-quality inclusions.

Let's Discuss Your Home
Complete the form to book a design consultation with one of our friendly new home consultants.
Error: Contact form not found.






