Cobbitty by Mirvac
Enquire Now

Road 4 Cobbitty, NSW 2570
$1,133,790
MOONSTONE MK1
Cobbitty by Mirvac
PACKAGE INCLUSIONS:
- FIXED SITE COSTS
- BASIX
- Plain concrete driveway up to 60m2 – excludes footpath
- Actron single phase ducted air-conditioning unit
- 2590mm high ceilings to ground floor only
MOONSTONE MK1
Cobbitty by Mirvac
PACKAGE INCLUSIONS:
- FIXED SITE COSTS
- BASIX
- Plain concrete driveway up to 60m2 – excludes footpath
- Actron single phase ducted air-conditioning unit
- 2590mm high ceilings to ground floor only
- Full height tiling to Bathroom and Ensuite only
- Creative Collection Range – 20mm Stone to Kitchen
- Designer Sink Mixer
- Finger pull cabinetry to overhead cupboards
- 2400mm high overhead kitchen wall cabinetry
- Soft close drawers and doors
- Plumbed cold water point to fridge space
- 900mm – SS – Gas Cooktop
- 900mm – SS – Built-In Electric Oven Model
- 900mm – SS – Slide Out Rangehood – Recirculating
- Dishwasher
- Designer Square Double Bowl Lay-on Sink
- Semi-frameless shower screens
- Creative Collection range of glazed porcelain tiles to wet area floors
- Creative Collection range of glazed porcelain tiles to ground main floors OR 8mm Laminate to ground main floors
- 1500mm Freestanding Bath
- Tapware in Matte Black to Bathroom, Ensuite and Powder Room (House Design Specific)
- Accessories in Matte Black
- Wall Hung Vanities (House Design Specific)
- 4
- 2
Area Calculations
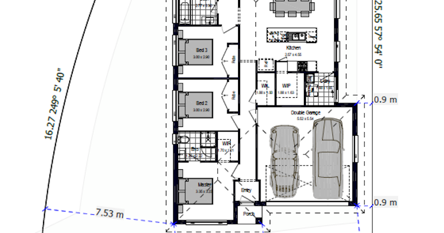
Bed: 4
Bath: 2
Garage: 2
Property features
Lot size: 456.0
Land size: 15.0 x 25.0
Land price: $729,900
Latest news
Our Latest Offers & News
Come visit us at
A Display Home in Sydney
Now you can view your future home in person with Crystele display homes across South and Western Sydney.Visit your closest location and explore our contemporary designs complete with our premium finishes and high-quality inclusions.

Let's Discuss Your Home
Complete the form to book a design consultation with one of our friendly new home consultants.
Error: Contact form not found.










